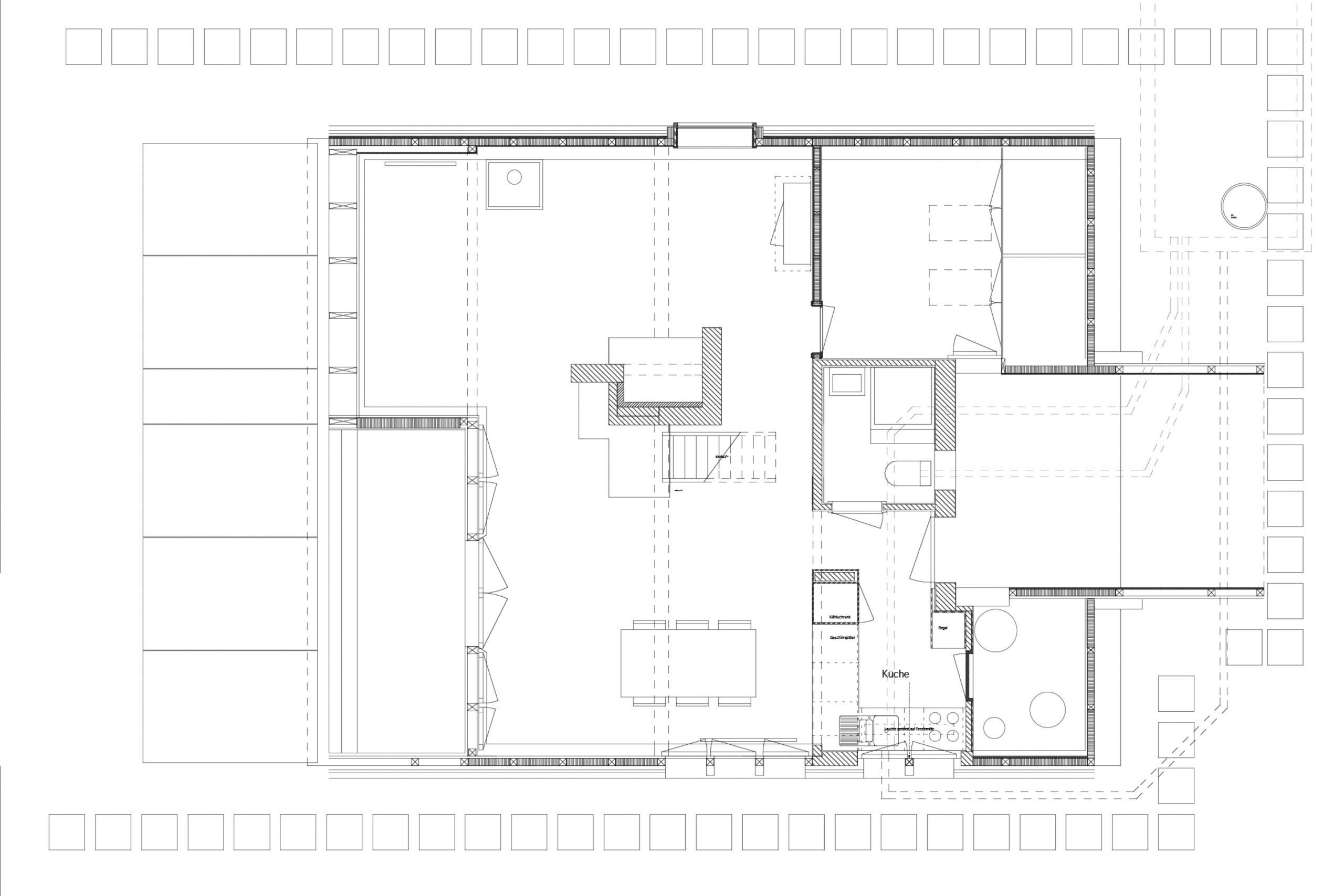
Umbau Wochenendhaus Lommis
Idyllisch gelegen öffnet sich das Wochenendhaus am Waldrand zu Sonne und Weiher. Der Ersatz der Küche wird zum Anlass, das Haus noch konsequenter zum Aussenraum hin auszurichten und es behutsam zu einem Ein-Raum-Haus, welches sich um das grosszügige Cheminée organisiert, zu transformieren.









