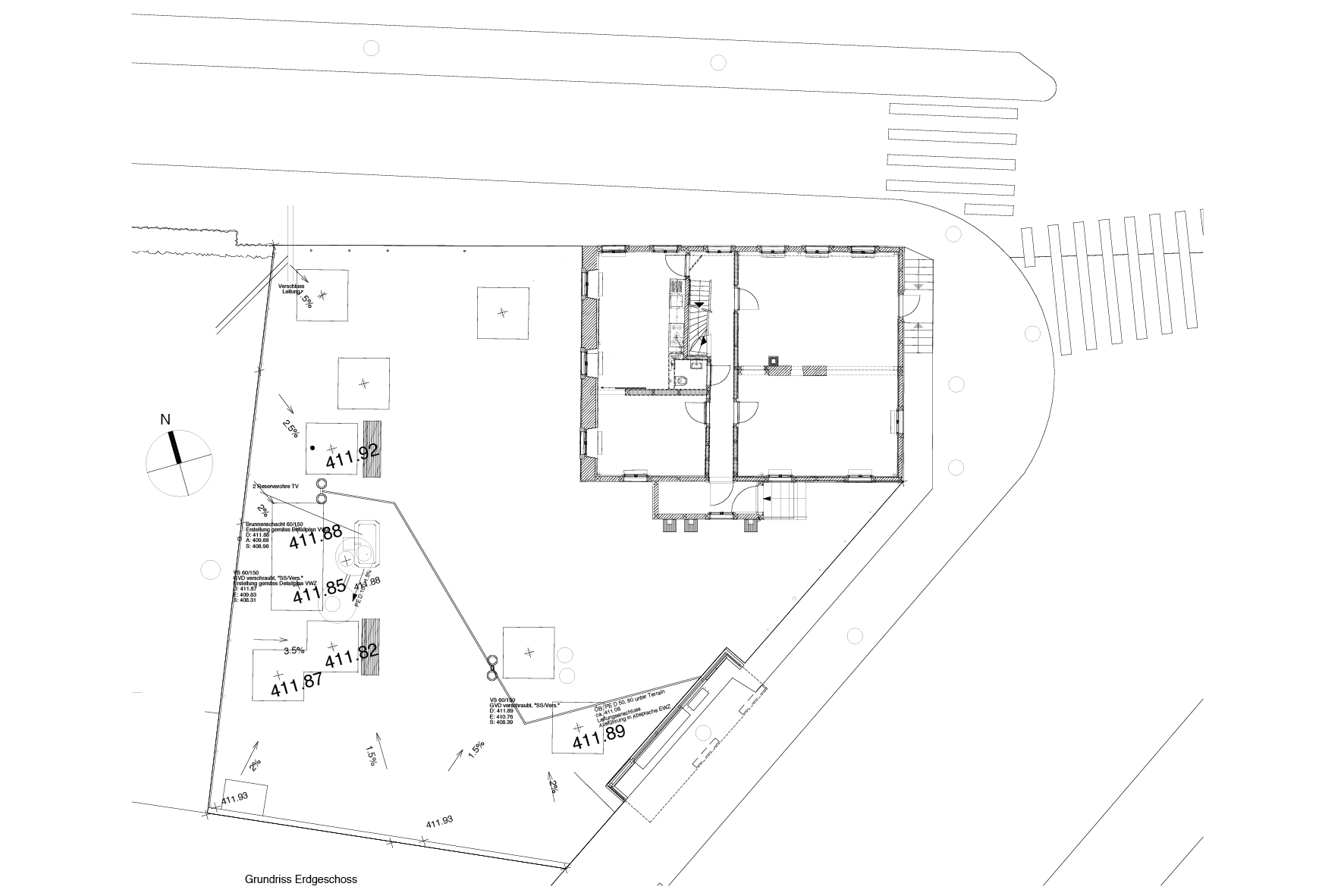
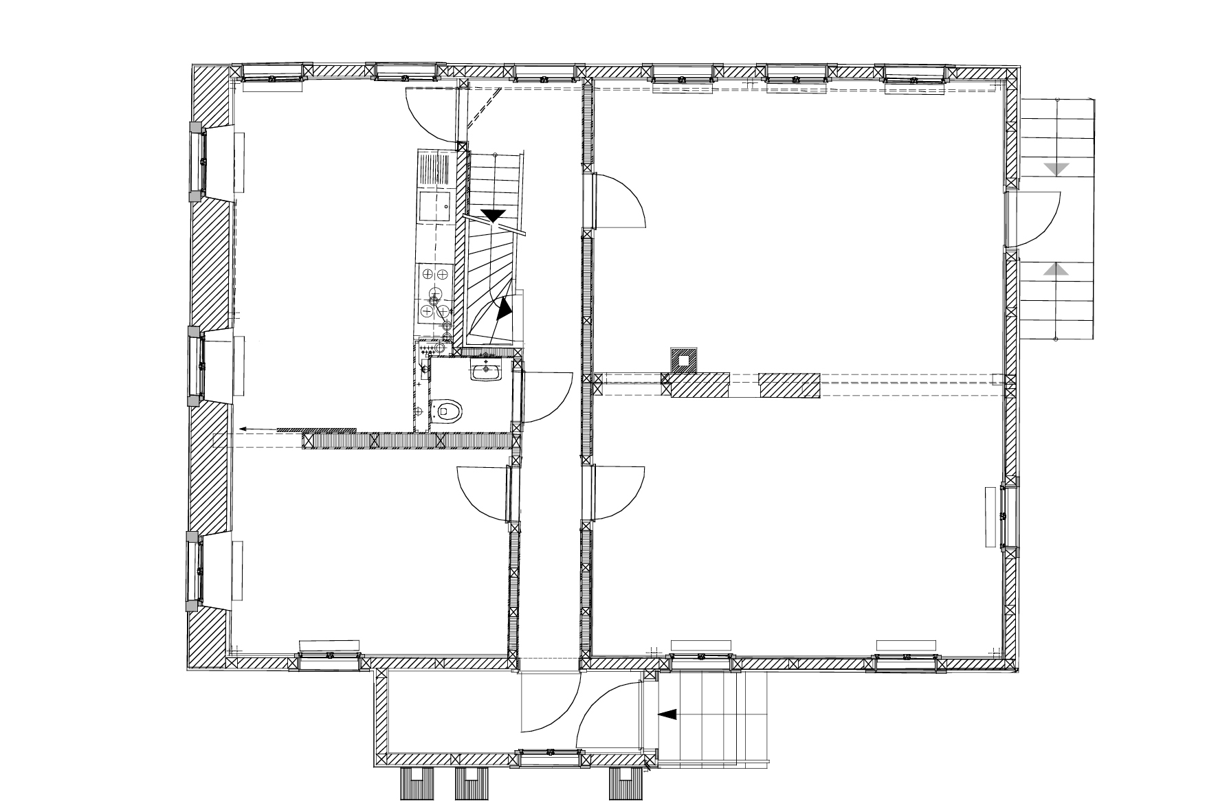
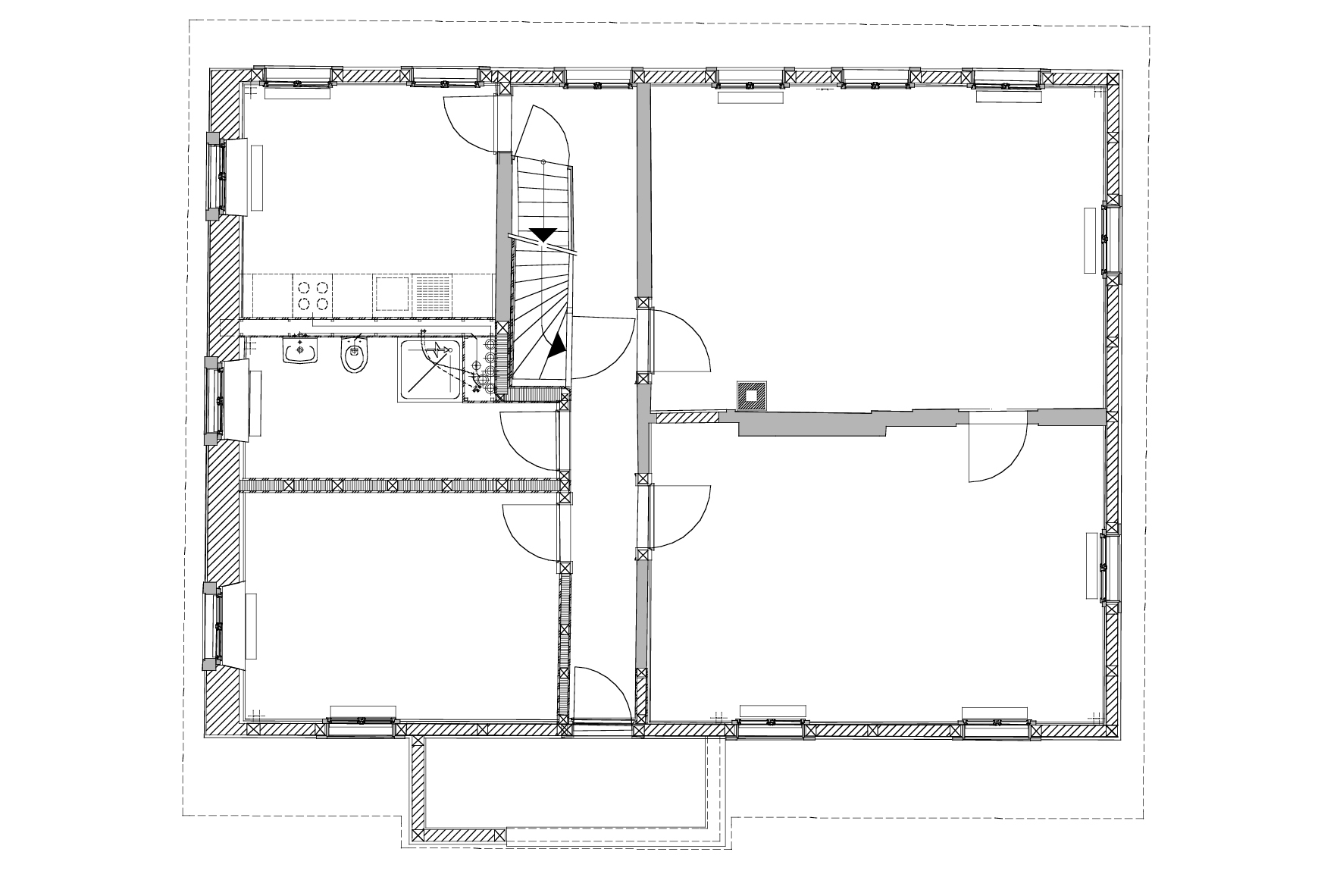
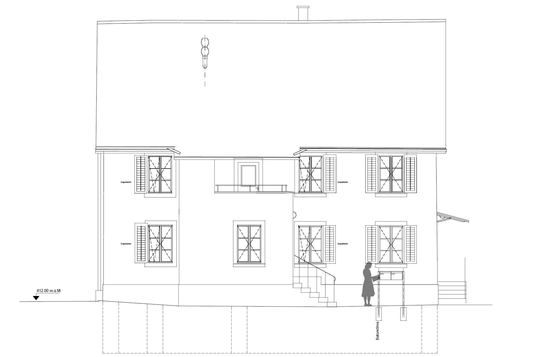
Restaurant Rosengarten, Zürich
Das denkmalgeschützte, ehemalige Restaurant Rosengarten, ist als erster Bau – damals mitten in Feldern an einer Kreuzung im Kreis 4 liegend – Zeuge der Verstädterung in der Biedermeierzeit. Nach jahrzehntelanger Vernachlässigung musste das Haus einer äusserst aufwändigen denkmalpflegerischen Totalsanierung unterzogen werden. Konstruktion, Oberflächen und Farbigkeit zeigen nun wieder den ursprünglichen Zustand des Hauses aus dem Baujahr 1842. Das Haus kann als Büro- oder Wohnhaus genutzt werden.





















