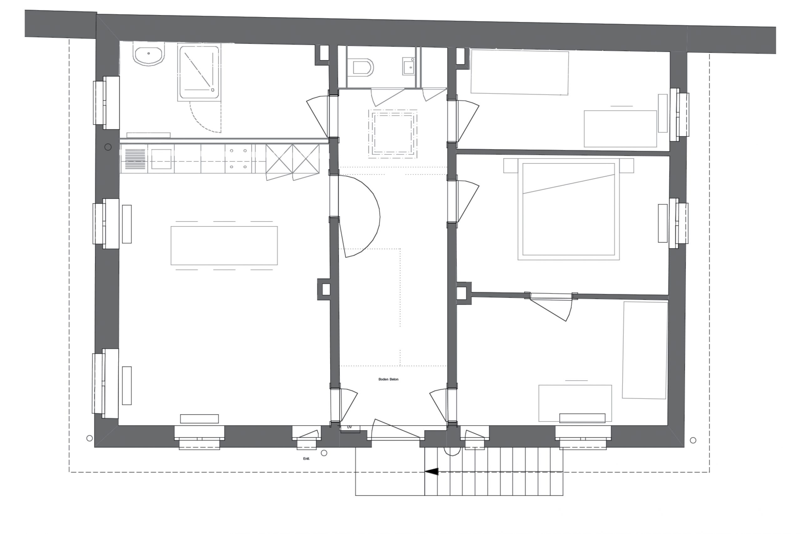
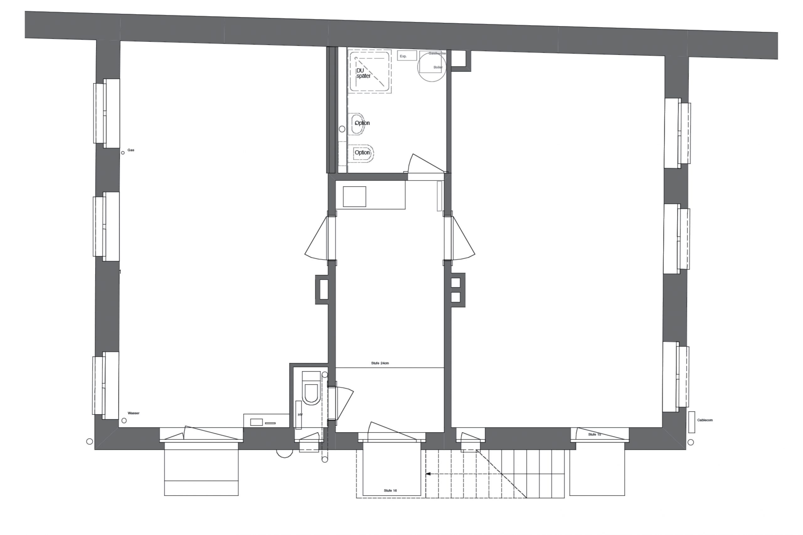
Sanfte Renovation/Umbau Hinterhofhaus, Zürich
Das zweigeschossige, in einem Hinterhof gelegene und als Wohn- und Atelierhaus genutzte ehemalige Waschhaus wird sanft renoviert und seiner gelassenen Alltäglichkeit behutsam Rechnung getragen. Als wichtiges Mittel wird die Farbgebung eingesetzt, um seine sehr gewöhnlichen Oberflächen zu veredeln und neuen Charme und Wohnlichkeit zu verleihen.















