Denkmalpflegerischer Umbau Pfarrhaus St. Agatha
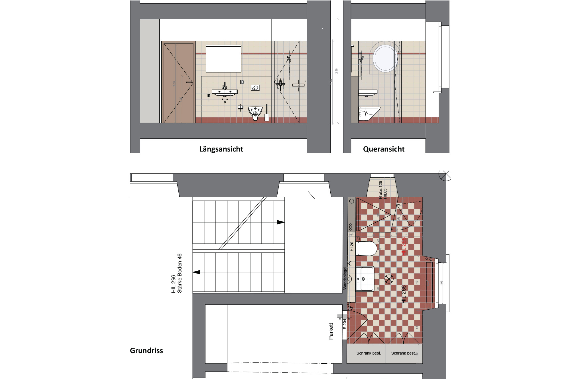
Die drei in den 70-er-Jahren erstellten Bäder des kantonal denkmalgeschützten Pfarrhauses im klassizistischen Stil werden dankmalpflegerisch instandgesetzt und neu gestaltet. Referenz für die Materialisierung und Farbgebung bilden die Materialien und Farbtöne des historischen Bestandes.

