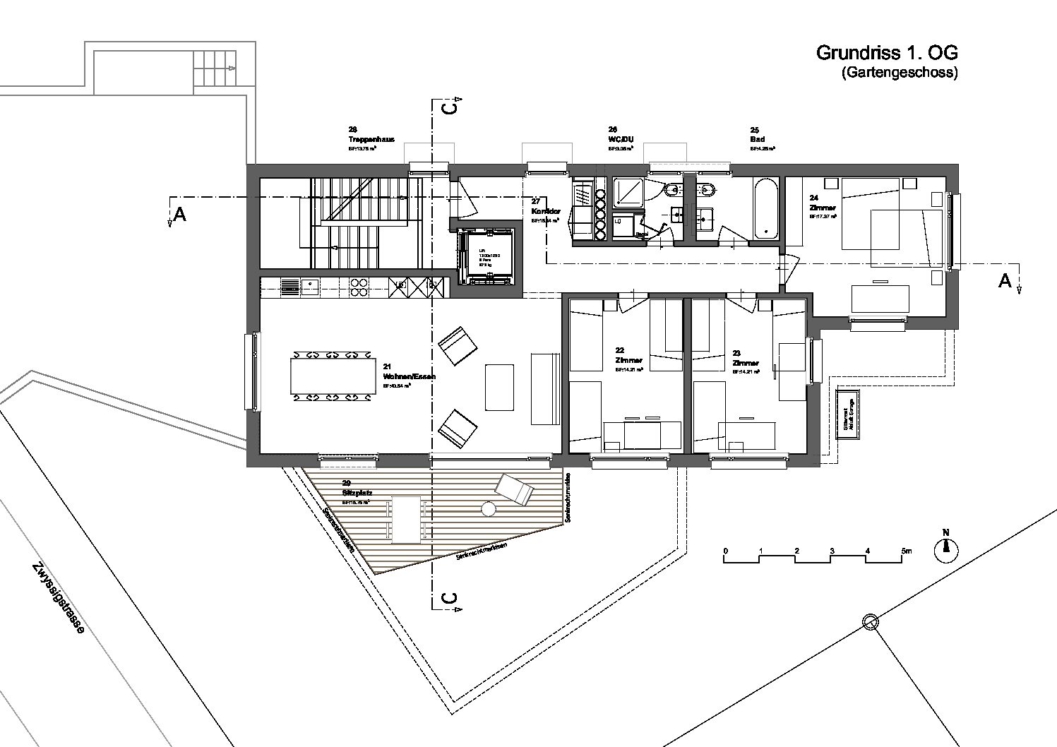
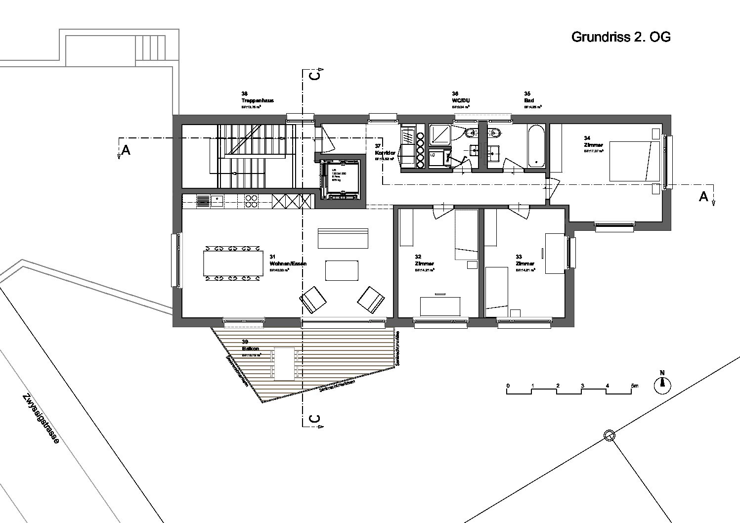
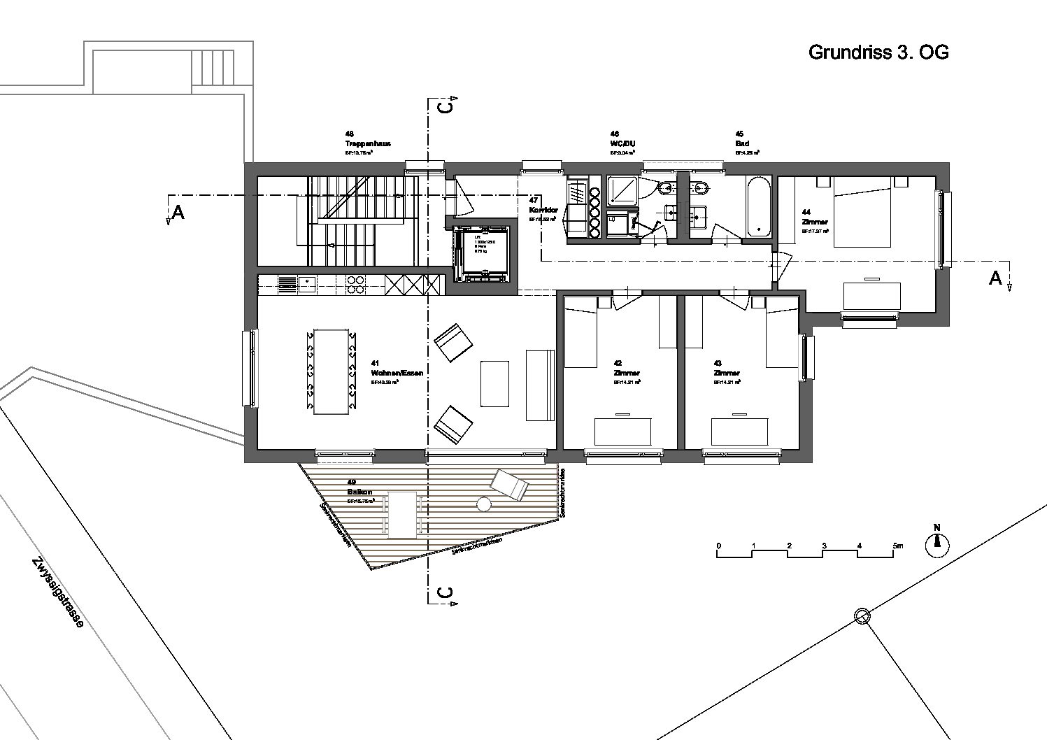
Ersatzneubau Mehrfamilienhaus, Luzern
Das Mehrfamilienhaus ersetzt einen Bau mit Mietwohnungen aus den 50-er-Jahren an guter Adresse im Wesemlinquartier von Luzern. Die Auseinandersetzung mit Baustruktur und der Materialität der Umgebung hat zusammen mit der Prämisse baurechtlicher Vollausnutzung zu einer spezifischen Gebäudeform mit einem Giebel in Querrichtung geführt. Das Haus bietet geräumige Mietwohnungen in gehobenem Standard und ist in Minergie-Standard ausgeführt.




























