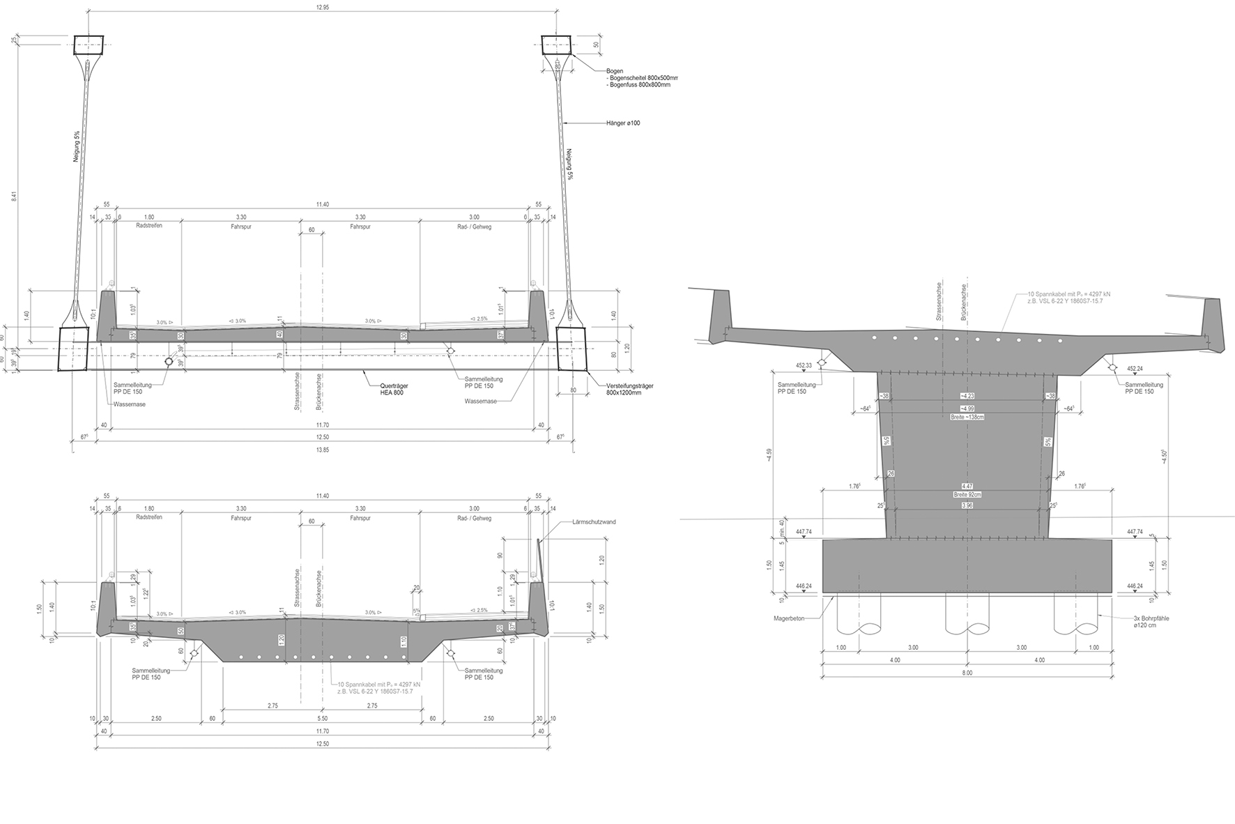
Die Muotabrücke Ibach West führt als Teil der Umfahrung von Schwyz über die Muota, wobei die leicht nach innen geneigten Bögen das von Dämmen gefasste Normalflussbett der Muota markieren.
Ingenieursubmission
2017, 1. Preis
Projektierung
2017–2018
Ausführung
2021–2023
Ingenieur
Basler+Hofmann AG
Bauherrin
Gemeinde Schwyz
Baukosten
3.5 Mio.