Denkmalpflegerische Instandsetzung Bären Dietikon
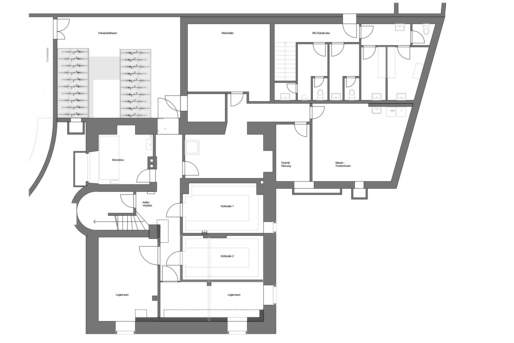
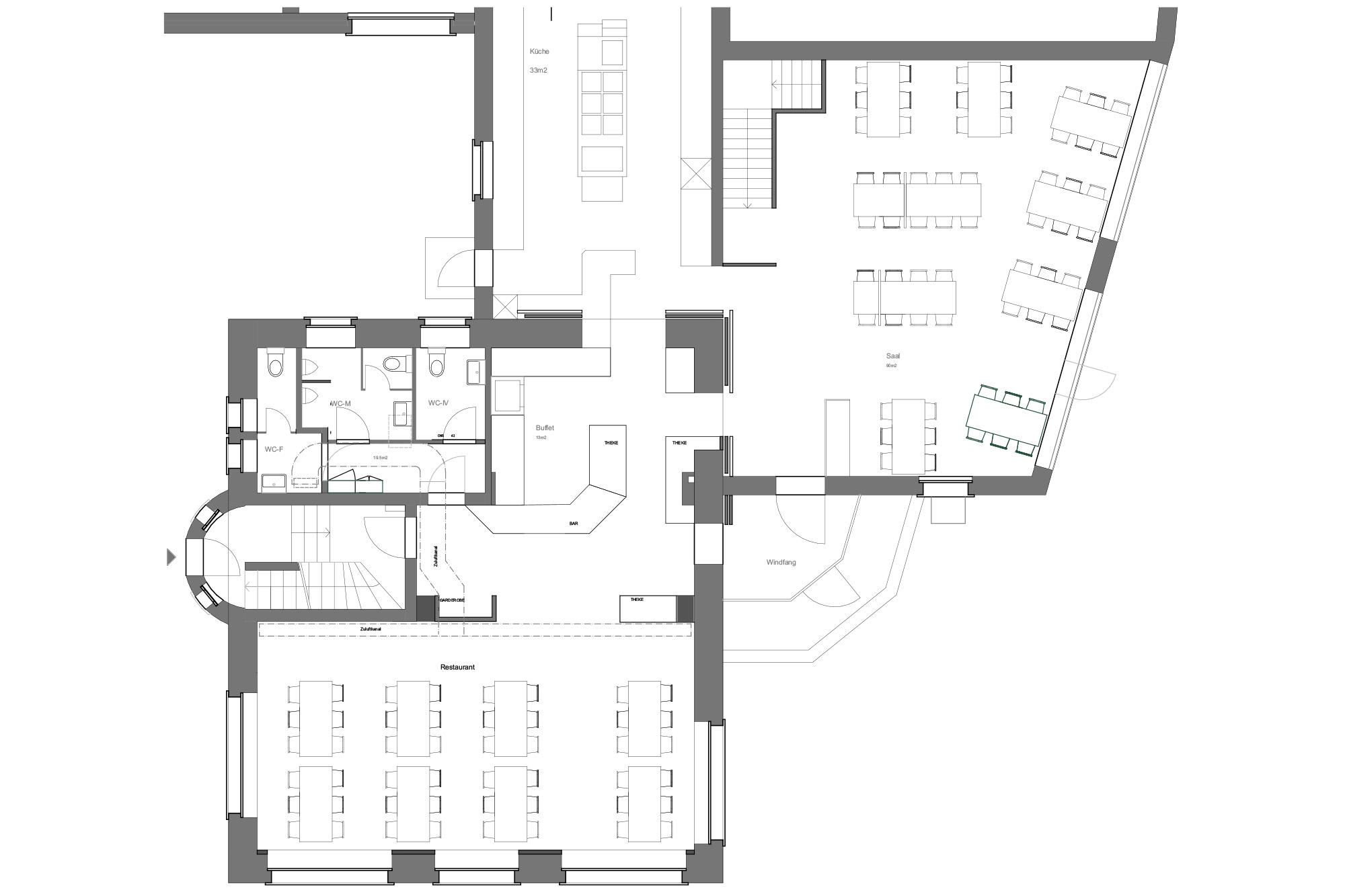
Selbstbewusst und identitätsstiftend steht der markante und denkmalgeschützte Bären seit 1910 als wichtiges Element am Platz vor dem Bahnhof Dietikon. Im Schweizer Heimatstil erbaut ist er vor Ort einer der wenigen Zeugen seiner Zeit. Im Zuge eines Eigentümerwechsels wurden die 5 grosszügigen Geschosswohnungen über dem Restaurant denkmalpflegerisch renoviert, wobei das oberste Geschoss mit ehemals Mansardenzimmern einen neuen Grundriss erhielt. Grosse Teile des historischen Bestandes an Böden und Decken konnten wieder hervorgeholt werden. Farbgebung und Materialisierung lehnen sich an den historischen Bestand an. Gleichzeitig wurde das gesamte Haus vom Keller bis zum Estrich situativ und behutsam so erdbebenertüchtigt, dass die Massnahmen sowohl kostengünstig als auch unsichtbar sind.









































