Asylunterkunft Luberzen, Dietikon
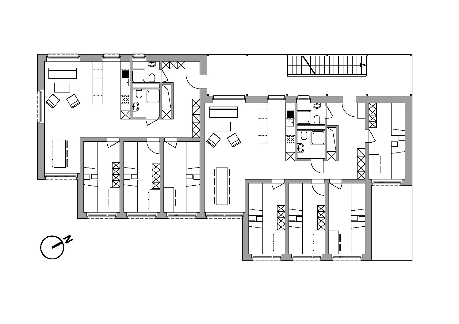
In der Folge der Verbreiterung der Bernstrasse musste die damalige Asylunterkunft dem Strassenbauprojekt weichen. Der mit grossformatigen Eternitplatten bekleidete Neubau in Holzmodulbauweise wird unweit des alten Standortes zwischen Autobahn und Bernstrasse erstellt. Die ausserordentlichen lärmtechnischen Herausforderungen konnten gelöst werden, indem eine Grundrisstypologie entwickelt wurde, bei welcher konsequent alle Wohn-und Schlafräume dem Lärm abgewandte Orientierung haben.




















